
弊社管理ビルのご紹介 サロンや物販店舗に◎
- クーラビル 4F
- 渋谷区神南1-17-5
渋谷エリアのテナントビルのご紹介。オシャレなショップが多く集まる神南エリア。サロンや物販店舗におすすめの貸店舗です。クリニックはご相談可能ですが、歯科は不可。神南エリアで貸店舗をお探しなら!
| 物件No | 階数 | 面積 | 賃料(税込) | 業種 | 別フロア |
|---|---|---|---|---|---|
| k209 | 4F | 約52.37坪 | 1,298,000円 | なし |
こんにちは♪ AZplusスタッフです。
今回は、神南エリアにある店舗・事務所のご紹介です。

【所在地】
渋谷区神南1
【アクセス】
■JR各線・東京メトロ銀座線・半蔵門線・副都心線
「渋谷」駅徒歩8分
■JR山手線
「原宿」駅徒歩14分
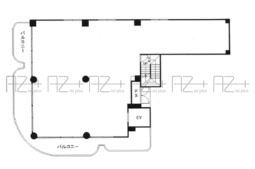
【面積】
173.13㎡(約52.37坪)


渋谷エリアのテナントビルのご紹介。
オシャレなショップが多く集まる神南エリア。
サロンや物販店舗におすすめの貸店舗です。
クリニックはご相談可能ですが、歯科は不可。
神南エリアで貸店舗をお探しなら!
———————————————————-
AZplus(アズプラス)はこだわりの店舗物件情報を掲載中です!
AZplus運営会社:株式会社アドバンス・シティ・プランニング
お問合せフォームはこちら↓
https://azplus.jp/request/
お電話でのお問合せはこちら↓
TEL :03-5413-8778
店舗物件や不動産に関するご質問でもお気軽にご連絡下さい。
AZplusスタッフ

渋谷エリアのテナントビルのご紹介。オシャレなショップが多く集まる神南エリア。サロンや物販店舗におすすめの貸店舗です。クリニックはご相談可能ですが、歯科は不可。神南エリアで貸店舗をお探しなら!
| 物件No | 階数 | 面積 | 賃料(税込) | 業種 | 別フロア |
|---|---|---|---|---|---|
| k209 | 4F | 約52.37坪 | 1,298,000円 | なし |
Category:物件紹介 , 【店舗物件】恵比寿・代官山エリア
こんにちは♪ AZplusスタッフです。 今回は、代官山エリアにある店舗のご紹介です。 代官山一棟貸 1-3F 【所在地】 渋谷区猿楽町 【アクセス】 ■東急東横線 「代官山」駅徒歩6分 【面積】 約62.2…
Category:物件紹介 , 【店舗物件】表参道・青山・外苑前
こんにちは♪ AZplusスタッフです。 今回は、表参道エリアにある店舗・事務所のご紹介です。 VORT北青山 10F 【所在地】 港区北青山3 【アクセス】 ■東京メトロ銀座線・千代田線・半蔵門線 「表参道…
Category:物件紹介 , 【店舗物件】世田谷エリア
こんにちは♪ AZplusスタッフです。 今回は、成城エリアにある店舗・事務所のご紹介です。 成城アーバンスクエア 1F 【所在地】 世田谷区成城6 【アクセス】 ■小田急小田原線 「成城学園前」駅徒歩2分 …