
明治通り沿い!新築! 1階路面店!軽飲食可!
- (仮称)広尾5丁目落合ビル 1F
- 渋谷区広尾5-19-20
広尾駅徒歩6分明治通り沿いの新築物件のご紹介です。広尾散歩通り至近で周辺には店舗も多数!カフェ等の軽飲食におすすめ!その他業種もご相談ください。広尾エリアで物件をお探しの方はお問い合わせください。
| 物件No | 階数 | 面積 | 賃料(税込) | 業種 | 別フロア |
|---|---|---|---|---|---|
| k217 | 1F | 12.54坪 | 689,700円 | なし |
こんにちは♪ AZplusスタッフです。
今回は、広尾エリアにある店舗のご紹介です。

【所在地】
渋谷区広尾5
【アクセス】
■東京メトロ日比谷線
「広尾」駅徒歩6分
■JR各線、東京メトロ日比谷線
「恵比寿」駅徒歩12分
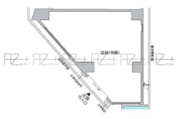
【面積】
41.48㎡(12.54坪)

平面図

広尾駅徒歩6分
明治通り沿いの新築物件のご紹介です。
広尾散歩通り至近で周辺には店舗も多数!
カフェ等の軽飲食におすすめ!
その他業種もご相談ください。
広尾エリアで物件をお探しの方はお問い合わせください。
———————————————————-
AZplus(アズプラス)はこだわりの店舗物件情報を掲載中です!
AZplus運営会社:株式会社アドバンス・シティ・プランニング
お問合せフォームはこちら↓
https://azplus.jp/request/
お電話でのお問合せはこちら↓
TEL :03-5413-8778
店舗物件や不動産に関するご質問でもお気軽にご連絡下さい。
AZplusスタッフ
Category:物件紹介 , 【店舗物件】表参道・原宿・神宮前
こんにちは♪ AZplusスタッフです。 今回は、表参道エリアにある店舗のご紹介です。 Concordia Omotesando 1F 【所在地】 渋谷区神宮前 【アクセス】 ■東京メトロ銀座線・半蔵門線・千…
Category:物件紹介 , 【店舗物件】六本木・西麻布
こんにちは♪ AZplusスタッフです。 今回は、西麻布エリアにある店舗・事務所のご紹介です。 早野ビル 3F-303号室 【所在地】 港区西麻布2 【アクセス】 ■東京メトロ日比谷線・都営大江戸線 「六本木…
Category:物件紹介 , 【店舗物件】表参道・青山・外苑前
こんにちは♪ AZplusスタッフです。 今回は、表参道エリアにある店舗・事務所のご紹介です。 T・Iビル 2F 【所在地】 港区南青山6 【アクセス】 ■東京メトロ銀座線・半蔵門線・千代田線 「表参道」駅徒…