
恵比寿駅徒歩5分! 2階!軽飲食相談可!
- プラザ恵比寿南 2F
- 渋谷区恵比寿南2-8-3
恵比寿駅徒歩5分お洒落な外観の物件の2階のご紹介です。アトリエのような外観の物件です!軽飲食相談可能!その他業種もご相談ください。他フロアにはアパレルショップ、事務所、ピラティススタジオ等が入っています。...
| 物件No | 階数 | 面積 | 賃料(税込) | 業種 | 別フロア |
|---|---|---|---|---|---|
| k215 | 2F | 約21.02坪 | 616,000円 | なし |
こんにちは♪ AZplusスタッフです。
今回は、恵比寿エリアにある店舗・事務所のご紹介です。

【所在地】
渋谷区恵比寿南2
【アクセス】
■JR各線、東京メトロ日比谷線
「恵比寿」駅徒歩5分
【面積】
約69.5㎡(約21.02坪)

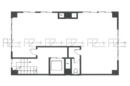
平面図

恵比寿駅徒歩5分
お洒落な外観の物件の2階のご紹介です。
アトリエのような外観の物件です!
軽飲食相談可能!その他業種もご相談ください。
他フロアにはアパレルショップ、事務所、ピラティススタジオ等が入っています。
恵比寿エリアで物件をお探しの方はお問い合わせください。
———————————————————-
AZplus(アズプラス)はこだわりの店舗物件情報を掲載中です!
AZplus運営会社:株式会社アドバンス・シティ・プランニング
お問合せフォームはこちら↓
https://azplus.jp/request/
お電話でのお問合せはこちら↓
TEL :03-5413-8778
店舗物件や不動産に関するご質問でもお気軽にご連絡下さい。
AZplusスタッフ

恵比寿駅徒歩5分お洒落な外観の物件の2階のご紹介です。アトリエのような外観の物件です!軽飲食相談可能!その他業種もご相談ください。他フロアにはアパレルショップ、事務所、ピラティススタジオ等が入っています。...
| 物件No | 階数 | 面積 | 賃料(税込) | 業種 | 別フロア |
|---|---|---|---|---|---|
| k215 | 2F | 約21.02坪 | 616,000円 | なし |
Category:物件紹介 , 【店舗物件】広尾エリア
こんにちは♪ AZplusスタッフです。 今回は、広尾エリアにある店舗のご紹介です。 (仮称)広尾5丁目落合ビル 1F 【所在地】 渋谷区広尾5 【アクセス】 ■東京メトロ日比谷線 「広尾」駅徒歩6分 ■JR…
Category:物件紹介 , 【店舗物件】表参道・原宿・神宮前
こんにちは♪ AZplusスタッフです。 今回は、表参道エリアにある店舗のご紹介です。 Concordia Omotesando 1F 【所在地】 渋谷区神宮前 【アクセス】 ■東京メトロ銀座線・半蔵門線・千…
Category:物件紹介 , 【店舗物件】六本木・西麻布
こんにちは♪ AZplusスタッフです。 今回は、西麻布エリアにある店舗・事務所のご紹介です。 早野ビル 3F-303号室 【所在地】 港区西麻布2 【アクセス】 ■東京メトロ日比谷線・都営大江戸線 「六本木…