
祐天寺エリアの貸店舗 1-2階の2フロア
- 祐天寺2丁目ビル 1-2F
- 目黒区祐天寺2-3-9
祐天寺エリアの貸店舗のご紹介。元クリニックで1階2階の2フロア。クリニックやサロンにおススメ。建物前に車1台分の駐車スペースもあり、来客時にも◎祐天寺エリアで貸店舗をお探しなら!
| 物件No | 階数 | 面積 | 賃料(税込) | 業種 | 別フロア |
|---|---|---|---|---|---|
| k214 | 1-2F | 26.11坪 | 380,380円 | なし |
こんにちは♪ AZplusスタッフです。
今回は、祐天寺エリアにある店舗・事務所のご紹介です。

【所在地】
目黒区祐天寺2
【アクセス】
■東急東横線
「祐天寺」駅徒歩2分
【面積】
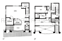
86.32㎡(26.11坪)


平面図

祐天寺エリアの貸店舗のご紹介。
元クリニックで1階2階の2フロア。
クリニックやサロンにおススメ。
建物前に車1台分の駐車スペースもあり、
来客時にも◎
祐天寺エリアで貸店舗をお探しなら!
———————————————————-
AZplus(アズプラス)はこだわりの店舗物件情報を掲載中です!
AZplus運営会社:株式会社アドバンス・シティ・プランニング
お問合せフォームはこちら↓
https://azplus.jp/request/
お電話でのお問合せはこちら↓
TEL :03-5413-8778
店舗物件や不動産に関するご質問でもお気軽にご連絡下さい。
AZplusスタッフ

祐天寺エリアの貸店舗のご紹介。元クリニックで1階2階の2フロア。クリニックやサロンにおススメ。建物前に車1台分の駐車スペースもあり、来客時にも◎祐天寺エリアで貸店舗をお探しなら!
| 物件No | 階数 | 面積 | 賃料(税込) | 業種 | 別フロア |
|---|---|---|---|---|---|
| k214 | 1-2F | 26.11坪 | 380,380円 | なし |
Category:物件紹介 , 【店舗物件】恵比寿・代官山エリア
こんにちは♪ AZplusスタッフです。 今回は、恵比寿エリアにある店舗・事務所のご紹介です。 ACN恵比寿スクエア 3F 【所在地】 渋谷区東3 【アクセス】 ■JR各線・東京メトロ日比谷線 「恵比寿」駅徒…
Category:物件紹介 , 【店舗物件】中目黒エリア
こんにちは♪ AZplusスタッフです。 今回は、中目黒エリアにある店舗・事務所のご紹介です。 イーストヒル 1F 【所在地】 目黒区中目黒1 【アクセス】 ■東急東横線 「代官山」駅徒歩5分 ■JR各線・東…
Category:物件紹介 , 【店舗物件】世田谷エリア
こんにちは♪ AZplusスタッフです。 今回は、下北沢エリアにある店舗・事務所のご紹介です。 環境ビル 1F 【所在地】 世田谷区北沢2-33-2 【アクセス】 小田急小田原線、京王井の頭線 「下北沢」駅徒…