Category:物件紹介 , 【店舗物件】麻布十番エリア
【店舗・事務所紹介】麻布十番商店街沿い! 飲食可能な8階!
こんにちは♪ AZplusスタッフです。 今回は、麻布十番エリアにある店舗・事務所のご紹介です。 THE V-CITY麻布十番CENTRE 8F 【所在地】 港区麻布十番1 【アクセス】 ■都営大江戸線 「麻…
こんにちは♪ AZplusスタッフです。
今回は、青山エリアにある店舗のご紹介です。

【所在地】
港区南青山3
【アクセス】
■東京メトロ銀座線・半蔵門線・千代田線
「表参道」駅徒歩8分
■東京メトロ銀座線
「外苑前」駅徒歩6分
【面積】
48.71㎡(14.73坪)


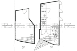
平面図

外苑前駅徒歩6分、表参道駅8分
長者丸通り至近の隠れ家物件のご紹介です。
黄色を基調としたお洒落な外観のデザイナーズビルです!
2,3階部分のメゾネットタイプでの募集となります。
サービス業等に!業種はご相談ください。
他フロアには美容院が入っています。
青山エリアで物件をお探しの方はお問い合わせください。
———————————————————-
AZplus(アズプラス)はこだわりの店舗物件情報を掲載中です!
AZplus運営会社:株式会社アドバンス・シティ・プランニング
お問合せフォームはこちら↓
https://azplus.jp/request/
お電話でのお問合せはこちら↓
TEL :03-5413-8778
店舗物件や不動産に関するご質問でもお気軽にご連絡下さい。
AZplusスタッフ
Category:物件紹介 , 【店舗物件】麻布十番エリア
こんにちは♪ AZplusスタッフです。 今回は、麻布十番エリアにある店舗・事務所のご紹介です。 THE V-CITY麻布十番CENTRE 8F 【所在地】 港区麻布十番1 【アクセス】 ■都営大江戸線 「麻…
Category:物件紹介 , 【店舗物件】中目黒エリア
こんにちは♪ AZplusスタッフです。 今回は、中目黒エリアにある事務所のご紹介です。 AK-Iビル 3F 【所在地】 目黒区青葉台1 【アクセス】 ■東急東横線、東京メトロ日比谷線 「中目黒」駅徒歩7分 …
Category:物件紹介 , 【店舗物件】麻布十番エリア
こんにちは♪ AZplusスタッフです。 今回は、麻布十番エリアにある店舗・事務所のご紹介です。 THE CITY麻布十番Ⅱ CROSS 4F 【所在地】 港区麻布十番3 【アクセス】 ■東京メトロ南北線、都…