
骨董通り沿い!新築! 1階~3階の一括貸し!
- 南青山アバックビル 1-3F
- 港区南青山6-6-22
表参道駅徒歩10分骨董通り沿いの新築物件のご紹介です。1階~3階までの3フロア一括貸しとなります!1階から3階まで各階内照式看板がございます。業種は幅広く対応可能なので、ご相談ください。南青山エリアで物件...
| 物件No | 階数 | 面積 | 賃料(税込) | 業種 | 別フロア |
|---|---|---|---|---|---|
| k229 | 1-3F | 約51.66坪 | 2,800,000円 | あり |
こんにちは♪ AZplusスタッフです。
今回は、南青山エリアにある店舗のご紹介です。

【所在地】
港区南青山6
【アクセス】
■東京メトロ銀座線・半蔵門線・千代田線
「表参道」駅徒歩10分
【面積】
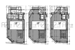
170.79㎡(約51.66坪)

平面図

表参道駅徒歩10分
骨董通り沿いの新築物件のご紹介です。
1階~3階までの3フロア一括貸しとなります!
1階から3階まで各階内照式看板がございます。
業種は幅広く対応可能なので、ご相談ください。
南青山エリアで物件をお探しの方はお問い合わせください。
———————————————————-
AZplus(アズプラス)はこだわりの店舗物件情報を掲載中です!
AZplus運営会社:株式会社アドバンス・シティ・プランニング
お問合せフォームはこちら↓
https://azplus.jp/request/
お電話でのお問合せはこちら↓
TEL :03-5413-8778
店舗物件や不動産に関するご質問でもお気軽にご連絡下さい。
AZplusスタッフ
Category:物件紹介 , 【店舗物件】渋谷駅周辺
こんにちは♪ AZplusスタッフです。 今回は、神南エリアにある店舗・事務所のご紹介です。 ジョルディビル 3F 【所在地】 渋谷区神南1 【アクセス】 ■JR山手線 「原宿」駅徒歩8分 ■J…
Category:物件紹介 , 【店舗物件】麻布十番エリア
こんにちは♪ AZplusスタッフです。 今回は、麻布十番エリアにある店舗・事務所のご紹介です。 NS麻布十番ビル 11F 【所在地】 港区麻布十番3 【アクセス】 ■東京メトロ南北線 「麻布十番」駅徒歩4分…
Category:物件紹介
こんにちは♪ AZplusスタッフです。 今回は、品川エリアにある事務所のご紹介です。 工芸の空間 長者丸ハウス 1-2F 【所在地】 品川区上大崎2 【アクセス】 ■JR山手線、東京メトロ南北線 「目黒」駅…