
北参道エリア!4階! 100坪超えの貸事務所
- フィールド北参道 4F
- 渋谷区千駄ヶ谷4-4-4
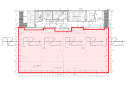
北参道駅徒歩3分、代々木駅徒歩7分大きな窓面が特徴のオフィス物件のご紹介です。複数路線が利用可能な好立地!レイアウトもしやすい柱が無い約100坪の整形空間!北参道エリアでオフィス物件をお探しの方はお問い合...
| 物件No | 階数 | 面積 | 賃料(税込) | 業種 | 別フロア |
|---|---|---|---|---|---|
| k269 | 4F | 100.91坪 | 要相談 | なし |
こんにちは♪ AZplusスタッフです。
今回は、北参道エリアにある事務所のご紹介です。

【所在地】
渋谷区千駄ヶ谷4
【アクセス】
■東京メトロ副都心線
「北参道」駅徒歩3分
■JR各線、都営大江戸線
「代々木」駅徒歩7分
【面積】
333.59㎡(100.91坪)




北参道駅徒歩3分、代々木駅徒歩7分
大きな窓面が特徴のオフィス物件のご紹介です。
複数路線が利用可能な好立地!
レイアウトもしやすい柱が無い約100坪の整形空間!
北参道エリアでオフィス物件をお探しの方はお問い合わせください。
———————————————————-
AZplus(アズプラス)はこだわりの店舗物件情報を掲載中です!
AZplus運営会社:株式会社アドバンス・シティ・プランニング
お問合せフォームはこちら↓
https://azplus.jp/request/
お電話でのお問合せはこちら↓
TEL :03-5413-8778
店舗物件や不動産に関するご質問でもお気軽にご連絡下さい。
AZplusスタッフ
Category:物件紹介 , 【店舗物件】渋谷駅周辺
こんにちは♪ AZplusスタッフです。 今回は、神南エリアにある店舗・事務所のご紹介です。 ジョルディビル 3F 【所在地】 渋谷区神南1 【アクセス】 ■JR山手線 「原宿」駅徒歩8分 ■J…
Category:物件紹介 , 【店舗物件】麻布十番エリア
こんにちは♪ AZplusスタッフです。 今回は、麻布十番エリアにある店舗・事務所のご紹介です。 NS麻布十番ビル 11F 【所在地】 港区麻布十番3 【アクセス】 ■東京メトロ南北線 「麻布十番」駅徒歩4分…
Category:物件紹介
こんにちは♪ AZplusスタッフです。 今回は、品川エリアにある事務所のご紹介です。 工芸の空間 長者丸ハウス 1-2F 【所在地】 品川区上大崎2 【アクセス】 ■JR山手線、東京メトロ南北線 「目黒」駅…