
恵比寿!ビール坂沿い! 8階!貸事務所!
- ebisu422 8F
- 渋谷区恵比寿4-22-10
恵比寿駅徒歩7分ビール坂通り沿いのオフィス物件のご紹介です。ファサードが特徴的なオフィス物件!20坪超えのワンフロア!詳細についてはAZplusへお問い合わせください。
| 物件No | 階数 | 面積 | 賃料(税込) | 業種 | 別フロア |
|---|---|---|---|---|---|
| k367 | 8F | 28.95坪 | 要相談 | なし |
こんにちは♪ AZplusスタッフです。
今回は、恵比寿エリアにある事務所のご紹介です。

【所在地】
渋谷区恵比寿4
【アクセス】
■JR各線、東京メトロ日比谷線
「恵比寿」駅徒歩6分
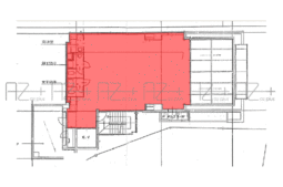
【面積】
95.70㎡(28.95坪)


恵比寿駅徒歩7分
ビール坂通り沿いのオフィス物件のご紹介です。
ファサードが特徴的なオフィス物件!
20坪超えのワンフロア!
詳細についてはAZplusへお問い合わせください。
———————————————————-
AZplus(アズプラス)はこだわりの店舗物件情報を掲載中です!
AZplus運営会社:株式会社アドバンス・シティ・プランニング
お問合せフォームはこちら↓
https://azplus.jp/request/
お電話でのお問合せはこちら↓
TEL :03-5413-8778
店舗物件や不動産に関するご質問でもお気軽にご連絡下さい。
AZplusスタッフ

恵比寿駅徒歩7分ビール坂通り沿いのオフィス物件のご紹介です。ファサードが特徴的なオフィス物件!20坪超えのワンフロア!詳細についてはAZplusへお問い合わせください。
| 物件No | 階数 | 面積 | 賃料(税込) | 業種 | 別フロア |
|---|---|---|---|---|---|
| k367 | 8F | 28.95坪 | 要相談 | なし |
Category:物件紹介 , 【店舗物件】表参道・青山・外苑前
こんにちは♪ AZplusスタッフです。 今回は、表参道・外苑前エリアにある店舗・事務所のご紹介です。 カサビアンカ 1F-102号室 【所在地】 港区南青山3 【アクセス】 ■東京メトロ銀座線 「外苑前」駅…
Category:物件紹介 , 【店舗物件】麻布十番エリア
こんにちは♪ AZplusスタッフです。 今回は、麻布十番エリアにある店舗・事務所のご紹介です。 EX麻布十番 6F 【所在地】 港区麻布十番1 【アクセス】 ■東京メトロ南北線、都営大江戸線 「麻布十番」駅…
Category:物件紹介 , 【店舗物件】渋谷駅周辺
こんにちは♪ AZplusスタッフです。 今回は、渋谷エリアにある店舗・事務所のご紹介です。 青山TKOビル 9F 【所在地】 渋谷区渋谷1 【アクセス】 ■東京メトロ銀座線・半蔵門線・副都心線、京王井の頭線…