
- 渋谷区渋谷2-10-14
- 27.71坪 9-10F
- 月額賃料:792,506円
渋谷駅徒歩7分青山通り沿いの事務所向け物件のご紹介で...
※図面と写真が現況と異なる場合は、現況を優先とします。
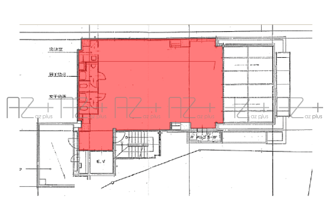
| 物件No. | k367 |
|---|---|
| 物件名称 | ebisu422 8F |
| 所在地 | 渋谷区恵比寿4-22-10 |
| 最寄駅 | ■JR各線、東京メトロ日比谷線 「恵比寿」駅徒歩6分 |
| 面積 | 95.70㎡(28.95坪) |
| 月額賃料 | 税込要相談 税別要相談 |
| 所在階 | 8F |
| 敷金 | ビル側指定保証会社加入により最大0円 |
| 契約期間 | 普通借家契約 |
| 入居時期 | 2026年4月11日 |
|---|---|
| 天井高 | 2.52m |
| 構造・規模 | 鉄骨鉄筋コンクリート造 地下1階付9階建 |
| 設備 | ■エレベーター1基 ■個別空調 ■機械警備 ■光ケーブル:MDFまで引込済み ■機械式駐車場 全長:4,900mm全幅1,950mm 全高:1,570mm重量:1,600kg |
| 竣工 | 1993年3月 |
| 備考 | ■開館時間 平日8:00~20:00土日祝は閉館 (時間外は通用口からカードキーにて入館) |
| 取引様態 | 媒介 |
| 仲介手数料 | 賃料の1ヶ月分(別途消費税) |
| 更新日 | 2026-02-19 |
恵比寿駅徒歩7分
ビール坂通り沿いのオフィス物件のご紹介です。
ファサードが特徴的なオフィス物件!
20坪超えのワンフロア!
詳細についてはAZplusへお問い合わせください。



渋谷駅徒歩7分青山通り沿いの事務所向け物件のご紹介で...








恵比寿駅徒歩5分一棟貸しの隠れ家物件のご紹介です。駅...









麻布十番駅から徒歩7分!麻布十番商店街通り沿いに立地...





六本木駅徒歩3分、六本木通り沿い、六本木ヒルズの向か...





渋谷駅徒歩7分、表参道駅徒歩6分青山通り沿いの物件の...
※図面と写真が現況と異なる場合は、現況を優先とします。