
青山通り沿い!6階! オフィスとしてオススメ
- 第35荒井ビル 6F
- 渋谷区渋谷1-1-3
渋谷駅徒歩7分、表参道駅徒歩6分青山通り沿いの物件のご紹介です。事務所向けの物件となりますが、業種もご相談ください。渋谷、表参道エリアで物件をお探しの方はお問い合わせください。
| 物件No | 階数 | 面積 | 賃料(税込) | 業種 | 別フロア |
|---|---|---|---|---|---|
| k365 | 6F | 18.29坪 | 要相談 | なし |
こんにちは♪ AZplusスタッフです。
今回は、渋谷、表参道エリアにある店舗・事務所のご紹介です。

【所在地】
渋谷区渋谷1
【アクセス】
■JR各線、東京メトロ銀座線・半蔵門線・副都心線、東急東横線・田園都市線、京王井の頭線
「渋谷」駅徒歩7分
■東京メトロ銀座線・千代田線・半蔵門線
「表参道」駅徒歩6分
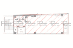
【面積】
60.46㎡(18.29坪)



渋谷駅徒歩7分、表参道駅徒歩6分
青山通り沿いの物件のご紹介です。
事務所向けの物件となりますが、業種もご相談ください。
渋谷、表参道エリアで物件をお探しの方はお問い合わせください。
———————————————————-
AZplus(アズプラス)はこだわりの店舗物件情報を掲載中です!
AZplus運営会社:株式会社アドバンス・シティ・プランニング
お問合せフォームはこちら↓
https://azplus.jp/request/
お電話でのお問合せはこちら↓
TEL :03-5413-8778
店舗物件や不動産に関するご質問でもお気軽にご連絡下さい。
AZplusスタッフ

渋谷駅徒歩7分、表参道駅徒歩6分青山通り沿いの物件のご紹介です。事務所向けの物件となりますが、業種もご相談ください。渋谷、表参道エリアで物件をお探しの方はお問い合わせください。
| 物件No | 階数 | 面積 | 賃料(税込) | 業種 | 別フロア |
|---|---|---|---|---|---|
| k365 | 6F | 18.29坪 | 要相談 | なし |
Category:物件紹介 , 【店舗物件】六本木・西麻布
こんにちは♪ AZplusスタッフです。 今回は、六本木エリアにある店舗・事務所のご紹介です。 FUSION Roppongi Terrace B1F 【所在地】 港区六本木7 【アクセス】 ■東京メトロ日比…
Category:物件紹介 , 【店舗物件】恵比寿・代官山エリア
こんにちは♪ AZplusスタッフです。 今回は、代官山エリアにある店舗・事務所のご紹介です。 代官山店舗・事務所ビル B1F 【所在地】 渋谷区恵比寿西1 【アクセス】 ■東急東横線 「代官山」駅 ■東急東…
Category:物件紹介 , 【店舗物件】恵比寿・代官山エリア
こんにちは♪ AZplusスタッフです。 今回は、恵比寿エリアにある店舗・事務所のご紹介です。 コルティス恵比寿 2F 【所在地】 渋谷区恵比寿西1 【アクセス】 ■JR各線、東京メトロ日比谷線 「恵比寿」駅…