Category:物件紹介 , 【店舗物件】表参道・原宿・神宮前
【店舗紹介】神宮前エリアの貸店舗 約10坪の小さめ物件
こんにちは♪ AZplusスタッフです。 今回は、神宮前エリアにある店舗のご紹介です。 神宮前COURTⅡ 3F-301号室 【所在地】 渋谷区神宮前4 【アクセス】 ■JR山手線 「原宿」駅徒歩9分 ■東京…
こんにちは♪ AZplusスタッフです。
今回は、赤坂エリアにある店舗・事務所のご紹介です。

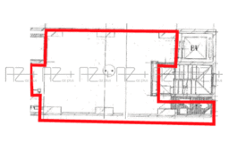
【所在地】
港区赤坂2
【アクセス】
■東京メトロ千代田線
「赤坂」駅徒歩3分
■東京メトロ銀座線・南北線
「溜池山王」駅徒歩5分
【面積】
約36.36㎡(約11.00坪)



赤坂駅徒歩3分、エスプラナード赤坂通りにある建物の2階!
シティホテルの向かいになり、人通り◎
飲食店向き、前テナントは割烹料理店、
他のフロアには居酒屋、カラオケバー等が入居中。
深夜酒類提供も可能です。
詳しくはAZplusまでお問い合わせください。
———————————————————-
AZplus(アズプラス)はこだわりの店舗物件情報を掲載中です!
AZplus運営会社:株式会社アドバンス・シティ・プランニング
お問合せフォームはこちら↓
https://azplus.jp/request/
お電話でのお問合せはこちら↓
TEL :03-5413-8778
店舗物件や不動産に関するご質問でもお気軽にご連絡下さい。
AZplusスタッフ
Category:物件紹介 , 【店舗物件】表参道・原宿・神宮前
こんにちは♪ AZplusスタッフです。 今回は、神宮前エリアにある店舗のご紹介です。 神宮前COURTⅡ 3F-301号室 【所在地】 渋谷区神宮前4 【アクセス】 ■JR山手線 「原宿」駅徒歩9分 ■東京…
Category:物件紹介 , 【店舗物件】恵比寿・代官山エリア
こんにちは♪ AZplusスタッフです。 今回は、代官山エリアにある店舗・事務所のご紹介です。 La GRACE代官山 1F 【所在地】 渋谷区代官山町8 【アクセス】 ■東急東横線 「代官山」駅徒歩6分 ■…
Category:物件紹介 , 【店舗物件】表参道・原宿・神宮前
こんにちは♪ AZplusスタッフです。 今回は、神宮前エリアにある店舗のご紹介です。 DOLCE 2-4F 【所在地】 渋谷区神宮前3 【アクセス】 ■JR山手線 「原宿」駅徒歩10分 ■東京メトロ千代田線…