
赤坂サカス前!駅1分! 一ツ木通り!美容室居抜
- 赤坂ステラビル 8F
- 港区赤坂3-14-7
赤坂駅徒歩1分、赤坂サカスの目の前にある貸店舗。一ツ木通り沿いで賑わいのあるエリア。人通り◎8階、最上階!現状、美容室の居抜き、引き渡し状態についてはご相談ください。他のフロアには、マッサージ店、アイラッ...
| 物件No | 階数 | 面積 | 賃料(税込) | 業種 | 別フロア |
|---|---|---|---|---|---|
| k453 | 8F | 14.00坪 | 451,000円 | なし |
こんにちは♪ AZplusスタッフです。
今回は、赤坂エリアにある店舗・事務所のご紹介です。

【所在地】
港区赤坂3
【アクセス】
■東京メトロ千代田線
「赤坂」駅徒歩1分
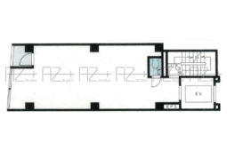
【面積】
約46.28㎡(14.00坪)



赤坂駅徒歩1分、赤坂サカスの目の前にある貸店舗。
一ツ木通り沿いで賑わいのあるエリア。
人通り◎
8階、最上階!
現状、美容室の居抜き、引き渡し状態についてはご相談ください。
他のフロアには、マッサージ店、アイラッシュ・アイブロウサロン、バー等が入居中。
詳しくはAZPlusまでお問い合わせください。
———————————————————-
AZplus(アズプラス)はこだわりの店舗物件情報を掲載中です!
AZplus運営会社:株式会社アドバンス・シティ・プランニング
お問合せフォームはこちら↓
https://azplus.jp/request/
お電話でのお問合せはこちら↓
TEL :03-5413-8778
店舗物件や不動産に関するご質問でもお気軽にご連絡下さい。
AZplusスタッフ

赤坂駅徒歩1分、赤坂サカスの目の前にある貸店舗。一ツ木通り沿いで賑わいのあるエリア。人通り◎8階、最上階!現状、美容室の居抜き、引き渡し状態についてはご相談ください。他のフロアには、マッサージ店、アイラッ...
| 物件No | 階数 | 面積 | 賃料(税込) | 業種 | 別フロア |
|---|---|---|---|---|---|
| k453 | 8F | 14.00坪 | 451,000円 | なし |
Category:物件紹介 , 【店舗物件】表参道・原宿・神宮前
こんにちは♪ AZplusスタッフです。 今回は、神宮前エリアにある店舗のご紹介です。 神宮前COURTⅡ 3F-301号室 【所在地】 渋谷区神宮前4 【アクセス】 ■JR山手線 「原宿」駅徒歩9分 ■東京…
Category:物件紹介 , 【店舗物件】恵比寿・代官山エリア
こんにちは♪ AZplusスタッフです。 今回は、代官山エリアにある店舗・事務所のご紹介です。 La GRACE代官山 1F 【所在地】 渋谷区代官山町8 【アクセス】 ■東急東横線 「代官山」駅徒歩6分 ■…
Category:物件紹介 , 【店舗物件】表参道・原宿・神宮前
こんにちは♪ AZplusスタッフです。 今回は、神宮前エリアにある店舗のご紹介です。 DOLCE 2-4F 【所在地】 渋谷区神宮前3 【アクセス】 ■JR山手線 「原宿」駅徒歩10分 ■東京メトロ千代田線…