
代々木上原エリア! 窓の多い明るい事務所
- オークハウス 4F-401号室
- 渋谷区上原3-6-6
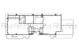
代々木上原エリアの貸事務所のご紹介。角地に建つビルで窓も多く明るい空間が魅力。広めのバルコニーもあり雰囲気◎デザイン事務所さんやアパレルさんの事務所等におススメです。代々木上原エリアで貸事務所をお探しなら...
| 物件No | 階数 | 面積 | 賃料(税込) | 業種 | 別フロア |
|---|---|---|---|---|---|
| k462 | 4F401号室 | 34.20坪 | 564,300円 | なし |
こんにちは♪ AZplusスタッフです。
今回は、代々木上原エリアにある事務所のご紹介です。

【所在地】
渋谷区上原3
【アクセス】
■小田急小田原線
「代々木上原」駅徒歩2分
■小田急小田原線
「東北沢」駅徒歩9分
■小田急小田原線
「代々木八幡」駅徒歩13分
【面積】
113.05㎡(34.20坪)



代々木上原エリアの貸事務所のご紹介。
角地に建つビルで窓も多く明るい空間が魅力。
広めのバルコニーもあり雰囲気◎
デザイン事務所さんやアパレルさんの事務所等におススメです。
代々木上原エリアで貸事務所をお探しなら!
———————————————————-
AZplus(アズプラス)はこだわりの店舗物件情報を掲載中です!
AZplus運営会社:株式会社アドバンス・シティ・プランニング
お問合せフォームはこちら↓
https://azplus.jp/request/
お電話でのお問合せはこちら↓
TEL :03-5413-8778
店舗物件や不動産に関するご質問でもお気軽にご連絡下さい。
AZplusスタッフ

代々木上原エリアの貸事務所のご紹介。角地に建つビルで窓も多く明るい空間が魅力。広めのバルコニーもあり雰囲気◎デザイン事務所さんやアパレルさんの事務所等におススメです。代々木上原エリアで貸事務所をお探しなら...
| 物件No | 階数 | 面積 | 賃料(税込) | 業種 | 別フロア |
|---|---|---|---|---|---|
| k462 | 4F401号室 | 34.20坪 | 564,300円 | なし |
Category:物件紹介 , 【店舗物件】表参道・原宿・神宮前
こんにちは♪ AZplusスタッフです。 今回は、神宮前エリアにある店舗のご紹介です。 DOLCE 2-4F 【所在地】 渋谷区神宮前3 【アクセス】 ■JR山手線 「原宿」駅徒歩10分 ■東京メトロ千代田線…
Category:物件紹介
こんにちは♪ AZplusスタッフです。 今回は、奥渋エリアにある店舗・事務所のご紹介です。 h+富ヶ谷 B1F 【所在地】 渋谷区富ヶ谷1 【アクセス】 ■東京メトロ千代田線 「代々木公園」駅徒歩4分 ■小…
Category:物件紹介 , 【店舗物件】表参道・青山・外苑前 , 【店舗物件】表参道・原宿・神宮前
こんにちは♪ AZplusスタッフです。 今回は、神宮前エリアにある店舗のご紹介です。 神宮前五丁目PJ 1F 【所在地】 渋谷区神宮前5 【アクセス】 ■東京メトロ千代田線・副都心線 「明治神宮前」駅徒歩6…