
神山町エリアの貸事務所 セットアップオフィス!
- ユースクエア渋谷神山町 6F
- 渋谷区神山町7-12
神山町エリアの貸事務所のご紹介。フルセットアップオフィスのご紹介です。代々木公園至近のエリアで奥渋と呼ばれる最近注目のエリア。渋谷駅からも徒歩圏内ですが、渋谷の喧騒を離れた少し落ち着いた立地です。渋谷エリ...
| 物件No | 階数 | 面積 | 賃料(税込) | 業種 | 別フロア |
|---|---|---|---|---|---|
| k451 | 6F | 33.45坪 | 1,214,235円 | なし |
こんにちは♪ AZplusスタッフです。
今回は、渋谷エリアにある事務所のご紹介です。

【所在地】
渋谷区神山町7
【アクセス】
■JR各線、東京メトロ銀座線・半蔵門線・副都心線、東急東横線・田園都市線、京王井の頭線
「渋谷」駅徒歩11分
■東京メトロ千代田線
「代々木公園」駅徒歩9分
■小田急小田原線
「代々木八幡」駅徒歩11分
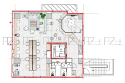
【面積】
110.61㎡(33.45坪)


神山町エリアの貸事務所のご紹介。
フルセットアップオフィスのご紹介です。
代々木公園至近のエリアで奥渋と呼ばれる最近注目のエリア。
渋谷駅からも徒歩圏内ですが、渋谷の喧騒を離れた少し落ち着いた立地です。
渋谷エリアで貸事務所をお探しなら!
———————————————————-
AZplus(アズプラス)はこだわりの店舗物件情報を掲載中です!
AZplus運営会社:株式会社アドバンス・シティ・プランニング
お問合せフォームはこちら↓
https://azplus.jp/request/
お電話でのお問合せはこちら↓
TEL :03-5413-8778
店舗物件や不動産に関するご質問でもお気軽にご連絡下さい。
AZplusスタッフ

神山町エリアの貸事務所のご紹介。フルセットアップオフィスのご紹介です。代々木公園至近のエリアで奥渋と呼ばれる最近注目のエリア。渋谷駅からも徒歩圏内ですが、渋谷の喧騒を離れた少し落ち着いた立地です。渋谷エリ...
| 物件No | 階数 | 面積 | 賃料(税込) | 業種 | 別フロア |
|---|---|---|---|---|---|
| k451 | 6F | 33.45坪 | 1,214,235円 | なし |
Category:物件紹介
こんにちは♪ AZplusスタッフです。 今回は、代官山エリアにある店舗のご紹介です。 ENetial代官山 1F-002号室 【所在地】 渋谷区猿楽町11 【アクセス】 ■東急東横線 「代官山」駅徒歩3分 …
Category:物件紹介 , 【店舗物件】千駄ヶ谷エリア
こんにちは♪ AZplusスタッフです。 今回は、千駄ヶ谷エリアにある店舗・事務所のご紹介です。 Cozy千駄ヶ谷 1-2F 【所在地】 渋谷区千駄ヶ谷2 【アクセス】 ■JR中央・総武線 「千駄ヶ谷」駅徒歩…
Category:物件紹介 , 【店舗物件】六本木・西麻布
こんにちは♪ AZplusスタッフです。 今回は、西麻布エリアにある店舗・事務所のご紹介です。 第二吉田ビル 3F 【所在地】 港区西麻布2 【アクセス】 ■東京メトロ千代田線 「乃木坂」駅徒歩10分 ■東京…