
代官山1階貸店舗! エスペランザ通り至近!
- La GRACE代官山 1F
- 渋谷区代官山町8-19
代官山駅徒歩6分、代官山エスペランザ通りから1本入ったところにある建物の1階。1階ですが、やや半地下のような造りになります。前テナントはデリバリー・テイクアウト店、他のフロアには眉毛サロン、美容室、事務所...
| 物件No | 階数 | 面積 | 賃料(税込) | 業種 | 別フロア |
|---|---|---|---|---|---|
| k487 | 1F | 13.83坪 | 480,000円 | なし |
こんにちは♪ AZplusスタッフです。
今回は、代官山エリアにある店舗・事務所のご紹介です。

【所在地】
渋谷区代官山町8
【アクセス】
■東急東横線
「代官山」駅徒歩6分
■JR各線、東京メトロ日比谷線
「恵比寿」駅徒歩9分
■JR各線、東京メトロ銀座線・半蔵門線・副都心線、東急東横線・田園都市線、京王井の頭線
「渋谷」駅徒歩9分
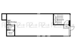
【面積】
45.73㎡(13.83坪)


代官山駅徒歩6分、代官山エスペランザ通りから1本入ったところにある建物の1階。
1階ですが、やや半地下のような造りになります。
前テナントはデリバリー・テイクアウト店、他のフロアには眉毛サロン、美容室、事務所が入居中。
詳しくはAzplusまでお問い合わせください。
———————————————————-
AZplus(アズプラス)はこだわりの店舗物件情報を掲載中です!
AZplus運営会社:株式会社アドバンス・シティ・プランニング
お問合せフォームはこちら↓
https://azplus.jp/request/
お電話でのお問合せはこちら↓
TEL :03-5413-8778
店舗物件や不動産に関するご質問でもお気軽にご連絡下さい。
AZplusスタッフ

代官山駅徒歩6分、代官山エスペランザ通りから1本入ったところにある建物の1階。1階ですが、やや半地下のような造りになります。前テナントはデリバリー・テイクアウト店、他のフロアには眉毛サロン、美容室、事務所...
| 物件No | 階数 | 面積 | 賃料(税込) | 業種 | 別フロア |
|---|---|---|---|---|---|
| k487 | 1F | 13.83坪 | 480,000円 | なし |
Category:物件紹介 , 【店舗物件】表参道・原宿・神宮前
こんにちは♪ AZplusスタッフです。 今回は、神宮前エリアにある店舗のご紹介です。 DOLCE 2-4F 【所在地】 渋谷区神宮前3 【アクセス】 ■JR山手線 「原宿」駅徒歩10分 ■東京メトロ千代田線…
Category:物件紹介
こんにちは♪ AZplusスタッフです。 今回は、奥渋エリアにある店舗・事務所のご紹介です。 h+富ヶ谷 B1F 【所在地】 渋谷区富ヶ谷1 【アクセス】 ■東京メトロ千代田線 「代々木公園」駅徒歩4分 ■小…
Category:物件紹介 , 【店舗物件】表参道・青山・外苑前 , 【店舗物件】表参道・原宿・神宮前
こんにちは♪ AZplusスタッフです。 今回は、神宮前エリアにある店舗のご紹介です。 神宮前五丁目PJ 1F 【所在地】 渋谷区神宮前5 【アクセス】 ■東京メトロ千代田線・副都心線 「明治神宮前」駅徒歩6…