
- 港区六本木7-17-23
- 20.72坪 3F
- 月額賃料:821,700円
六本木駅徒歩3分、六本木通りから1本入った通りに建築...
※図面と写真が現況と異なる場合は、現況を優先とします。
| 物件No. | k294 |
|---|---|
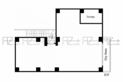
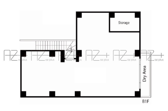
| 物件名称 | Keepers六本⽊ B1F |
| 所在地 | 港区六本木7-10-30 |
| 最寄駅 | ■都営大江戸線 「六本木」駅徒歩4分 ■東京メトロ千代⽥線 「乃⽊坂」徒歩10分 ■東京メトロ⽇⽐⾕線 「六本⽊」徒歩6分 |
| 面積 | 80.76㎡(24.42坪) |
| 月額賃料 | 税込880,000円(坪単価@約36,036円) 税別800,000円(坪単価@約32,760円) |
| 所在階 | B1F |
| 敷金 | 6ヶ月 |
| 礼金 | 1ヶ月 |
| 再契約料 | 新賃料の1ヶ⽉相当額 |
| 契約期間 | 定期借家契約4年 |
| 入居時期 | 応相談 |
|---|---|
| 火災保険料 | 要加入 |
| 保証会社 | 要加入 |
| 構造・規模 | 鉄骨造 地下1階付3階建 |
| 設備 | ■上下水道 |
| 現況 | 空室 |
| 竣工 | 2025年11月 |
| 備考 | ■現況スケルトン ■外国籍相談可 ■セキュリティー会社加⼊・⼯事費⽤別途 ■鍵交換する場合、費用別途負担あり ■⼊居時、コールセンター登録料19,800円 ■美容室、軽飲⾷可 重飲⾷不可 |
| 取引様態 | 媒介 |
| 仲介手数料 | 賃料の1ヶ月分(別途消費税) |
| 更新日 | 2026-04-02 |
六本木駅徒歩4分、龍土町美術館通りから1本入ったところにある新築ビルの地下1階!
建物は二面、道路に面しています。
1階から専用階段でのアプローチとなります。
周辺は飲食店が点在しています。
業種等詳しくはAZplusまでお問い合わせください。









六本木駅徒歩3分、六本木通りから1本入った通りに建築...









表参道駅徒歩3分。青山通り沿いから少し入った所にある...









六本木駅徒歩3分、六本木通りから1本入った通りに建築...









六本木駅徒歩3分、六本木通りから1本入った通りに建築...









表参道駅徒歩3分。青山通り沿いから少し入った所にある...
※図面と写真が現況と異なる場合は、現況を優先とします。