
- 港区六本木7-18-15
- 24.04坪 4F
- 月額賃料:634,656円
六本木駅徒歩3分、六本木通り沿い、六本木ヒルズの向か...
※図面と写真が現況と異なる場合は、現況を優先とします。
| 物件No. | k371 |
|---|---|
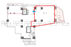
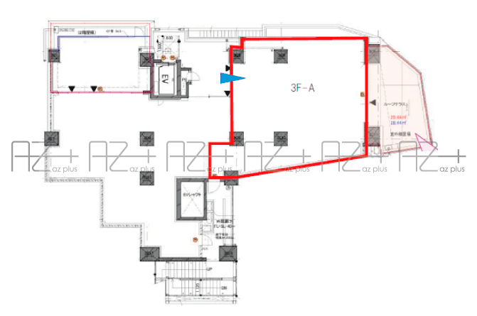
| 物件名称 | ラベイユ麻布十番 3F-A号室 |
| 所在地 | 港区麻布十番2-8-6 |
| 最寄駅 | ■東京メトロ南北線、都営大江戸線 「麻布十番」駅徒歩2分 |
| 面積 | 93.89㎡(28.40坪) |
| 月額賃料 | 税込968,440円(坪単価@34,100円) 税別880,400円(坪単価@31,000円) |
| 月額共益費 | 税込62,480円(坪単価@2,200円) 税別56,800円(坪単価@2,000円) |
| 月額賃料+共益費 | 税込1,030,920円 税別937,200円 |
| 所在階 | 3FA号室 |
| 敷金 | 8ヶ月 |
| 礼金 | 1ヶ月 |
| 償却 | 1ヶ月 |
|---|---|
| 契約期間 | 定期借家契約(期間相談)再契約可 |
| 火災保険料 | 要加入:指定 |
| 保証会社 | 要加入:指定 |
| 構造・規模 | 鉄筋コンクリート造 地下2階付12階建 |
| 設備 | ■設備スペック 電灯20kva 動力20kva 給水32A 排水100A×2 ガス50A ダクト500×350実装 ■エレベーター |
| 竣工 | 2017年11月末 |
| 備考 | ■袖看板(別途契約):月額5,500円(税込) ■※クリニック(美容皮膚科)の内装あり (造作譲渡可)(譲渡費用相談可) ■大型ルーフテラス ■24時間営業可 ■重飲食可(屋上までのダクト実装) ■駐輪場空きあり(要別途契約) |
| 取引様態 | 媒介 |
| 仲介手数料 | 賃料の1ヶ月分(別途消費税) |
| 更新日 | 2026-02-17 |
麻布十番の貸店舗のご紹介。
美容皮膚科の内装有。(造作譲渡代要相談)
貸室前は大きめのルーフバルコニーもついている物件です。
麻布十番エリアで貸店舗をお探しなら!








六本木駅徒歩3分、六本木通り沿い、六本木ヒルズの向か...









麻布十番駅から徒歩7分!麻布十番商店街通り沿いに立地...








麻布十番駅徒歩5分、麻布十番大通り、商店街沿いの建物...









代々木駅徒歩3分!代々木駅交差点から千代通り入口交差...








広尾駅徒歩7分西麻布エリアの新築物件のご紹介です。3...
※図面と写真が現況と異なる場合は、現況を優先とします。