
- 渋谷区恵比寿1-20-4
- 36.82坪 6F
- 月額賃料:要相談
人気の恵比寿エリアのご紹介。オシャレなデザインの建物...
※図面と写真が現況と異なる場合は、現況を優先とします。
| 物件No. | k451 |
|---|---|
| 物件名称 | ユースクエア渋谷神山町 6F |
| 所在地 | 渋谷区神山町7-12 |
| 最寄駅 | ■JR各線、東京メトロ銀座線・半蔵門線・副都心線、東急東横線・田園都市線、京王井の頭線 「渋谷」駅徒歩11分 ■東京メトロ千代田線 「代々木公園」駅徒歩9分 ■小田急小田原線 「代々木八幡」駅徒歩11分 |
| 面積 | 110.61㎡(33.45坪) |
| 月額賃料 | 税込1,214,235円(坪単価@36,300円) 税別1,103,850円(坪単価@33,000円) |
| 所在階 | 6F |
| 敷金 | 賃料の4ヶ月 |
| 更新料 | 新賃料の1ヶ月分 |
| 契約期間 | 普通借家契約2年 |
| 入居時期 | 2026年10/1~ |
|---|---|
| 火災保険料 | 要加入(指定なし) |
| 保証会社 | 要加入:指定(フォーシーズ) |
| 構造・規模 | 鉄筋コンクリート造 地下1階付6階建 |
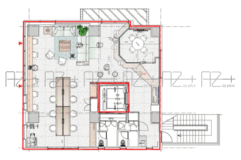
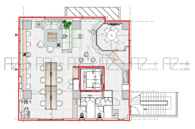
| 設備 | ■WORK AREA ハイカウンター席:6席 7名ソファ席:1セット メイン執務席:8席 ■LOUNGE AREA ソファ席:2席 ベンチ席:3席 スツール席:3セット ■MEETING ROOM 4名会議室:1室 |
| 竣工 | 2020年8月 |
| 備考 | ■解約予告:6ヶ月前 ■開館時間:8-20時 ■契約期間内の解約で違約金1ヶ月有 |
| 取引様態 | 媒介 |
| 仲介手数料 | 賃料の1ヶ月分(別途消費税) |
| 更新日 | 2026-04-23 |
神山町エリアの貸事務所のご紹介。
フルセットアップオフィスのご紹介です。
代々木公園至近のエリアで奥渋と呼ばれる最近注目のエリア。
渋谷駅からも徒歩圏内ですが、渋谷の喧騒を離れた少し落ち着いた立地です。
渋谷エリアで貸事務所をお探しなら!


人気の恵比寿エリアのご紹介。オシャレなデザインの建物...





渋谷駅徒歩7分六本木通り沿いの新築物件のご紹介です。...





渋谷駅徒歩7分六本木通り沿いの新築物件のご紹介です。...





渋谷駅徒歩7分六本木通り沿いの新築物件のご紹介です。...









代々木八幡駅徒歩1分、代々木公園駅徒歩1分、代々木八...
※図面と写真が現況と異なる場合は、現況を優先とします。