
- 港区北青山1-4-5
- 98.69坪 1-2F
- 月額賃料:要相談
青山一丁目駅徒歩3分、外苑前駅より徒歩4分、青山通り...
※図面と写真が現況と異なる場合は、現況を優先とします。
| 物件No. | k471 |
|---|---|
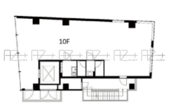
| 物件名称 | P's GAIENMAE 10F |
| 所在地 | 港区北青山2-7-27 |
| 最寄駅 | ■東京メトロ銀座線 「外苑前」駅徒歩2分 ■東京メトロ銀座線・半蔵門線・千代田線 「表参道」駅徒歩10分 ■東京メトロ銀座線・半蔵門線、都営大江戸線 「青山一丁目」駅徒歩10分 |
| 面積 | 70.20㎡(21.23坪) |
| 月額賃料 | 税込864,061円(坪単価@40,700円) 税別785,510円(坪単価@37,000円) |
| 月額管理費 | 税込70,059円(坪単価@3,300円) 税別63,690円(坪単価@3,000円) |
| 月額賃料+管理費 | 税込934,120円 税別849,200円 |
| 所在階 | 10F |
| 保証金 | 10ヶ月 |
| 償却 | 1ヶ月 |
| 契約期間 | 定期借家契約3年 |
|---|---|
| 入居時期 | 6月上旬 |
| 火災保険料 | 要加入 |
| 構造・規模 | 鉄骨造10階建 |
| 設備 | ■エレベーター ■トイレ ■エアコン ■給湯室 ■機械警備(セコムセキュリティ) |
| 竣工 | 2022年11月25日 |
| 備考 | ■賃料:事務所の場合/753,665円(税抜) ■保証金:事務所の場合/6ヶ月 ■スケルトン渡し、引渡し後に借主にて内装工事 |
| 取引様態 | 媒介 |
| 仲介手数料 | 賃料の1ヶ月分(別途消費税) |
| 更新日 | 2026-03-30 |
外苑前駅徒歩2分
スタジアム通り沿いの物件のご紹介です。
前面ガラス張りのお洒落な外観!
事務所は勿論、その他業種もご相談ください!
外苑前エリアで物件をお探しの方はお問い合わせください。








青山一丁目駅徒歩3分、外苑前駅より徒歩4分、青山通り...





外苑前駅より徒歩4分、外苑西通り(キラー通り)から1...





外苑前駅より徒歩4分、外苑西通り(キラー通り)から1...





外苑前駅より徒歩4分、外苑西通り(キラー通り)から1...





外苑前駅より徒歩4分、外苑西通り(キラー通り)から1...
※図面と写真が現況と異なる場合は、現況を優先とします。