
人気の骨董通り沿い! シンプルな内装あり!
- 英ビル 9-10F
- 港区南青山5-12-6
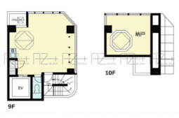
表参道駅徒歩6分骨董通り沿いの物件のご紹介です。9,10階のメゾネットタイプの物件です!シンプルで洗練された内装あり!表参道エリアでオフィス物件をお探しの方はお問い合わせください。
| 物件No | 階数 | 面積 | 賃料(税込) | 業種 | 別フロア |
|---|---|---|---|---|---|
| k262 | 9-10F | 約15.51坪 | 444,080円 | なし |
こんにちは♪ AZplusスタッフです。
今回は、表参道エリアにある事務所のご紹介です。

【所在地】
港区南青山5
【アクセス】
■東京メトロ半蔵門線・銀座線・千代田線
「表参道」駅徒歩6分
【面積】
51.29㎡(約15.51坪)



表参道駅徒歩6分
骨董通り沿いの物件のご紹介です。
9,10階のメゾネットタイプの物件です!
シンプルで洗練された内装あり!
表参道エリアでオフィス物件をお探しの方はお問い合わせください。
———————————————————-
AZplus(アズプラス)はこだわりの店舗物件情報を掲載中です!
AZplus運営会社:株式会社アドバンス・シティ・プランニング
お問合せフォームはこちら↓
https://azplus.jp/request/
お電話でのお問合せはこちら↓
TEL :03-5413-8778
店舗物件や不動産に関するご質問でもお気軽にご連絡下さい。
AZplusスタッフ

表参道駅徒歩6分骨董通り沿いの物件のご紹介です。9,10階のメゾネットタイプの物件です!シンプルで洗練された内装あり!表参道エリアでオフィス物件をお探しの方はお問い合わせください。
| 物件No | 階数 | 面積 | 賃料(税込) | 業種 | 別フロア |
|---|---|---|---|---|---|
| k262 | 9-10F | 約15.51坪 | 444,080円 | なし |
Category:物件紹介 , 【店舗物件】表参道・原宿・神宮前
こんにちは♪ AZplusスタッフです。 今回は、原宿エリアにある店舗・事務所のご紹介です。 Vista神宮前 1F 【所在地】 渋谷区神宮前1 【アクセス】 ■東京メトロ千代田線・副都心線 「明治神宮前」駅…
Category:物件紹介 , 【店舗物件】千駄ヶ谷エリア
こんにちは♪ AZplusスタッフです。 今回は、千駄ヶ谷エリアにある店舗・事務所のご紹介です。 Barbizon11 3F-303号室 【所在地】 渋谷区千駄ヶ谷1 【アクセス】 ■JR総武線 「千駄ヶ谷」…
Category:物件紹介 , 【店舗物件】千駄ヶ谷エリア
こんにちは♪ AZplusスタッフです。 今回は、千駄ヶ谷エリアにある店舗・事務所のご紹介です。 千駄ヶ谷尾澤ビル B1F 【所在地】 渋谷区千駄ヶ谷1 【アクセス】 ■JR総武線 「千駄ヶ谷」駅徒歩5分 ■…