
- 港区南青山5-10-19
- 14.23坪 7F
- 月額賃料:434,460円
表参道駅徒歩2分青山通り沿いの物件のご紹介です。南青...
※図面と写真が現況と異なる場合は、現況を優先とします。
| 物件No. | k262 |
|---|---|
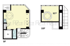
| 物件名称 | 英ビル 9-10F |
| 所在地 | 港区南青山5-12-6 |
| 最寄駅 | ■東京メトロ半蔵門線・銀座線・千代田線 「表参道」駅徒歩6分 |
| 面積 | 51.29㎡(約15.51坪) |
| 月額賃料 | 税込444,080円(坪単価@約28,631円) 税別403,709円(坪単価@約26,028円) |
| 所在階 | 9-10F |
| 敷金 | 賃料の6ヶ月分 |
| 礼金 | 賃料の1ヶ月分 |
| 契約期間 | 定期借家契約3年(再契約不可) |
| 入居時期 | 2026年2月上旬予定 |
| 火災保険料 | 要加入 |
|---|---|
| 保証会社 | 要加入:日本セーフティー(保証料:総賃料の50~100%) |
| 構造・規模 | 鉄骨鉄筋コンクリート造 地下1階付10階建 |
| 設備 | ■エアコン1基 ■ガスコンロ |
| 現況 | 現空 |
| 竣工 | 1993年3月 |
| 備考 | ■解約予告:1ヶ月前迄 |
| 取引様態 | 媒介 |
| 仲介手数料 | 賃料の1ヶ月分(別途消費税) |
| 更新日 | 2026-01-13 |
表参道駅徒歩6分
骨董通り沿いの物件のご紹介です。
9,10階のメゾネットタイプの物件です!
シンプルで洗練された内装あり!
表参道エリアでオフィス物件をお探しの方はお問い合わせください。


表参道駅徒歩2分青山通り沿いの物件のご紹介です。南青...





表参道駅徒歩7分、外苑前駅徒歩7分、長者丸通りから少...







外苑前駅徒歩2分、スタジアム通り沿いにある築浅ビルの...








表参道駅徒歩10分骨董通り沿いの新築物件のご紹介です...





外苑前駅より徒歩4分、外苑西通り(キラー通り)から1...
※図面と写真が現況と異なる場合は、現況を優先とします。