
千駄ヶ谷エリアのB1F サロン、スクールに◎
- 千駄ヶ谷尾澤ビル B1F
- 渋谷区千駄ヶ谷1-7-8
千駄ヶ谷エリアの地下1階ワンフロア。地下ではありますが、広めのドライエリアからアプローチ。物販やスクール等、サービス店舗におススメ。千駄ヶ谷エリアで貸店舗、貸事務所をお探しなら!
| 物件No | 階数 | 面積 | 賃料(税込) | 業種 | 別フロア |
|---|---|---|---|---|---|
| k399 | B1F | 61.22坪 | 1,210,000円 | なし |
こんにちは♪ AZplusスタッフです。
今回は、千駄ヶ谷エリアにある店舗・事務所のご紹介です。

【所在地】
渋谷区千駄ヶ谷1
【アクセス】
■JR総武線
「千駄ヶ谷」駅徒歩5分
■都営大江戸線
「国立競技場」駅徒歩5分
■東京メトロ副都心線
「北参道」駅徒歩5分
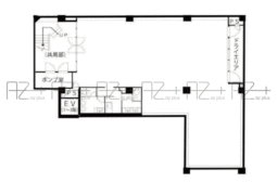
【面積】
202.4㎡(61.22坪)



千駄ヶ谷エリアの地下1階ワンフロア。
地下ではありますが、広めのドライエリアからアプローチ。
物販やスクール等、サービス店舗におススメ。
千駄ヶ谷エリアで貸店舗、貸事務所をお探しなら!
———————————————————-
AZplus(アズプラス)はこだわりの店舗物件情報を掲載中です!
AZplus運営会社:株式会社アドバンス・シティ・プランニング
お問合せフォームはこちら↓
https://azplus.jp/request/
お電話でのお問合せはこちら↓
TEL :03-5413-8778
店舗物件や不動産に関するご質問でもお気軽にご連絡下さい。
AZplusスタッフ

千駄ヶ谷エリアの地下1階ワンフロア。地下ではありますが、広めのドライエリアからアプローチ。物販やスクール等、サービス店舗におススメ。千駄ヶ谷エリアで貸店舗、貸事務所をお探しなら!
| 物件No | 階数 | 面積 | 賃料(税込) | 業種 | 別フロア |
|---|---|---|---|---|---|
| k399 | B1F | 61.22坪 | 1,210,000円 | なし |
Category:物件紹介 , 【店舗物件】表参道・原宿・神宮前
こんにちは♪ AZplusスタッフです。 今回は、神宮前エリアにある店舗のご紹介です。 神宮前COURTⅡ 3F-301号室 【所在地】 渋谷区神宮前4 【アクセス】 ■JR山手線 「原宿」駅徒歩9分 ■東京…
Category:物件紹介 , 【店舗物件】恵比寿・代官山エリア
こんにちは♪ AZplusスタッフです。 今回は、代官山エリアにある店舗・事務所のご紹介です。 La GRACE代官山 1F 【所在地】 渋谷区代官山町8 【アクセス】 ■東急東横線 「代官山」駅徒歩6分 ■…
Category:物件紹介 , 【店舗物件】表参道・原宿・神宮前
こんにちは♪ AZplusスタッフです。 今回は、神宮前エリアにある店舗のご紹介です。 DOLCE 2-4F 【所在地】 渋谷区神宮前3 【アクセス】 ■JR山手線 「原宿」駅徒歩10分 ■東京メトロ千代田線…