
人気の南青山エリア! 飲食可能!天高4.5m
- KDX南青山ビル B1F
- 港区南青山5-13-3
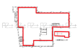
表参道駅徒歩6分骨董通り沿いの物件のご紹介です。地下1階の物件となり、飲食可能です!約70坪の広さの、スケルトン物件!1階部分はセブンイレブンです!南青山エリアで物件をお探しの方はお問い合わせください。
| 物件No | 階数 | 面積 | 賃料(税込) | 業種 | 別フロア |
|---|---|---|---|---|---|
| k259 | B1F | 68.48坪 | 要相談 | なし |
こんにちは♪ AZplusスタッフです。
今回は、表参道エリアにある店舗のご紹介です。

【所在地】
港区南青山5
【アクセス】
■東京メトロ半蔵門線・銀座線・千代田線
「表参道」駅徒歩6分
【面積】
232.35㎡(68.48坪)



表参道駅徒歩6分
骨董通り沿いの物件のご紹介です。
地下1階の物件となり、飲食可能です!
約70坪の広さの、スケルトン物件!
1階部分はセブンイレブンです!
南青山エリアで物件をお探しの方はお問い合わせください。
———————————————————-
AZplus(アズプラス)はこだわりの店舗物件情報を掲載中です!
AZplus運営会社:株式会社アドバンス・シティ・プランニング
お問合せフォームはこちら↓
https://azplus.jp/request/
お電話でのお問合せはこちら↓
TEL :03-5413-8778
店舗物件や不動産に関するご質問でもお気軽にご連絡下さい。
AZplusスタッフ
Category:物件紹介 , 【店舗物件】表参道・青山・外苑前
こんにちは♪ AZplusスタッフです。 今回は、表参道エリアにある店舗・事務所のご紹介です。 KSビル 5F 【所在地】 港区南青山6 【アクセス】 ■東京メトロ半蔵門線・千代田線・銀座線 「表参道」駅徒歩…
Category:物件紹介 , 【店舗物件】表参道・青山・外苑前
こんにちは♪ AZplusスタッフです。 今回は、表参道エリアにある事務所のご紹介です。 英ビル 9-10F 【所在地】 港区南青山5 【アクセス】 ■東京メトロ半蔵門線・銀座線・千代田線 「表参道」駅徒歩6…
Category:物件紹介 , 【店舗物件】六本木・西麻布
こんにちは♪ AZplusスタッフです。 今回は、六本木エリアにある店舗・事務所のご紹介です。 六本木7丁目(仮) B1F 【所在地】 港区六本木7 【アクセス】 ■東京メトロ日比谷線、都営大江戸線 「六本木…