
代官山エリアの新築! 1階店舗!天高3m!
- ENetial代官山 1F-002号室
- 渋谷区猿楽町11-8
代官山駅徒歩3分の新築物件のご紹介です。駅を出て直ぐの商業施設の目の前の物件です。100坪越えの1階部分!業種はご相談ください!代官山エリアで物件をお探しの方はお問い合わせください。
| 物件No | 階数 | 面積 | 賃料(税込) | 業種 | 別フロア |
|---|---|---|---|---|---|
| k279 | 1F002号室 | 118.44坪 | 5,211,360円 | なし |
こんにちは♪ AZplusスタッフです。
今回は、代官山エリアにある店舗のご紹介です。

【所在地】
渋谷区猿楽町11
【アクセス】
■東急東横線
「代官山」駅徒歩3分
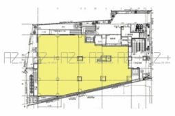
【面積】
391.57㎡(118.44坪)



代官山駅徒歩3分の新築物件のご紹介です。
駅を出て直ぐの商業施設の目の前の物件です。
100坪越えの1階部分!業種はご相談ください!
代官山エリアで物件をお探しの方はお問い合わせください。
———————————————————-
AZplus(アズプラス)はこだわりの店舗物件情報を掲載中です!
AZplus運営会社:株式会社アドバンス・シティ・プランニング
お問合せフォームはこちら↓
https://azplus.jp/request/
お電話でのお問合せはこちら↓
TEL :03-5413-8778
店舗物件や不動産に関するご質問でもお気軽にご連絡下さい。
AZplusスタッフ

代官山駅徒歩3分の新築物件のご紹介です。駅を出て直ぐの商業施設の目の前の物件です。100坪越えの1階部分!業種はご相談ください!代官山エリアで物件をお探しの方はお問い合わせください。
| 物件No | 階数 | 面積 | 賃料(税込) | 業種 | 別フロア |
|---|---|---|---|---|---|
| k279 | 1F002号室 | 118.44坪 | 5,211,360円 | なし |
Category:物件紹介 , 【店舗物件】渋谷駅周辺
こんにちは♪ AZplusスタッフです。 今回は、渋谷エリアにある事務所のご紹介です。 ユースクエア渋谷神山町 6F 【所在地】 渋谷区神山町7 【アクセス】 ■JR各線、東京メトロ銀座線・半蔵門線・副都心線…
Category:物件紹介 , 【店舗物件】千駄ヶ谷エリア
こんにちは♪ AZplusスタッフです。 今回は、千駄ヶ谷エリアにある店舗・事務所のご紹介です。 Cozy千駄ヶ谷 1-2F 【所在地】 渋谷区千駄ヶ谷2 【アクセス】 ■JR中央・総武線 「千駄ヶ谷」駅徒歩…
Category:物件紹介 , 【店舗物件】六本木・西麻布
こんにちは♪ AZplusスタッフです。 今回は、西麻布エリアにある店舗・事務所のご紹介です。 第二吉田ビル 3F 【所在地】 港区西麻布2 【アクセス】 ■東京メトロ千代田線 「乃木坂」駅徒歩10分 ■東京…