
- 港区白金台4-7-4
- 15.76坪 1F
- 月額賃料:572,000円
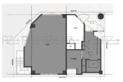
目黒通り沿いのテナントビルの1階貸店舗のご紹介。飲食...
※図面と写真が現況と異なる場合は、現況を優先とします。
| 物件No. | k409 |
|---|---|
| 物件名称 | 斉藤ビル 1F |
| 所在地 | 渋谷区道玄坂1-13-6 |
| 最寄駅 | ■JR各線、東急東横線・田園都市線、東京メトロ銀座線・半蔵門線・副都心線 「渋谷」駅徒歩4分 ■京王井の頭線 「渋谷」駅徒歩1分 |
| 面積 | 10.43㎡(3.15坪) |
| 月額賃料 | 税込495,000円(坪単価@約157,142円) 税別450,000円(坪単価@約142,857円) |
| 所在階 | 1F |
| 保証金 | 3ヶ月 |
| 再契約料 | 1ヶ月 |
| 契約期間 | 定期借家契約3年 |
| 入居時期 | 相談 |
|---|---|
| 火災保険料 | 要加入 |
| 保証会社 | 要加入 |
| 構造・規模 | 鉄筋コンクリート造 地下1階付4階建 |
| 設備 | ■エレベーター ■個別空調 ■室内トイレ |
| 竣工 | 1986年4月 |
| 備考 | ■フリーレント3ヶ月付 |
| 取引様態 | 媒介 |
| 仲介手数料 | 賃料の1ヶ月分(別途消費税) |
| 更新日 | 2026-05-20 |
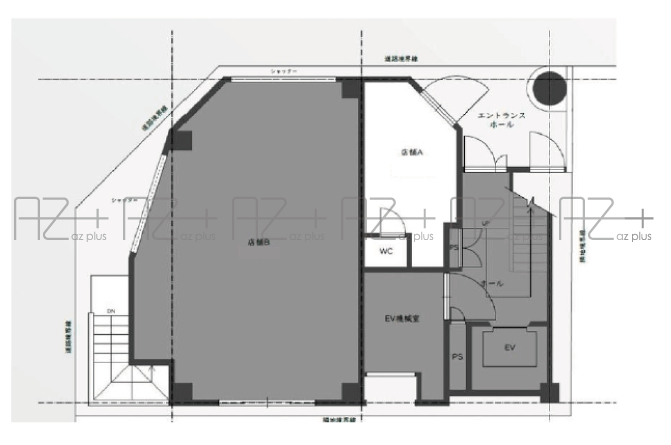
渋谷駅徒歩4分、井の頭線渋谷駅からは徒歩1分!
道玄坂エリア、渋谷中央通り沿いの角地に建つ建物の1階貸店舗。
希少な小規模物件、約3.15坪!
現状、事務所仕様ですが、業種等詳細についてはAZplusまでお問い合わせください。









目黒通り沿いのテナントビルの1階貸店舗のご紹介。飲食...







代官山駅徒歩6分、代官山エスペランザ通りから1本入っ...








南麻布エリアの1階貸店舗のご紹介。麻布十番駅から徒歩...









馬込駅から徒歩1分の新築テナントビルの1階ワンフロア...









恵比寿駅徒歩3分、恵比寿南三丁目交差点から細い通りに...
※図面と写真が現況と異なる場合は、現況を優先とします。