
- 港区南青山3-14-28
- 17.08坪 4F
- 月額賃料:660,000円
表参道駅徒歩4分、青山通りから1本入った通りにある建...
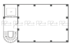
※図面と写真が現況と異なる場合は、現況を優先とします。
| 物件No. | k505 |
|---|---|
| 物件名称 | KRKビル 3F |
| 所在地 | 港区南青山3-14-28 |
| 最寄駅 | ■東京メトロ銀座線・千代田線・半蔵門線 「表参道」駅徒歩4分 |
| 面積 | 56.45㎡(17.08坪) |
| 月額賃料 | 税込660,000円(坪単価@約38,641円) 税別600,000円(坪単価@約35,128円) |
| 所在階 | 3F |
| 敷金 | 賃料の8ヶ月 |
| 礼金 | 賃料の1ヶ月 |
| 償却 | 賃料の1ヶ月 |
| 再契約料 | 再契約料1.5ヶ月分 |
| 契約期間 | 定期借家契約3年 |
|---|---|
| 入居時期 | 即日入居可能 |
| 保証会社 | 要加入 |
| 天井高 | 2.75m |
| 構造・規模 | 鉄骨鉄筋コンクリート造5階建 |
| 設備 | ■エレベーター ■ガスあり |
| 竣工 | 2025年7月 |
| 備考 | ■サービス店舗相談(土日祝利用可) 美容室可/クリニック可/BAR相談/飲食・宿泊不可 ■スケルトン(空調・トイレなし) |
| 取引様態 | 媒介 |
| 仲介手数料 | 賃料の1ヶ月分(別途消費税) |
| 更新日 | 2026-04-03 |
表参道駅徒歩4分、青山通りから1本入った通りにある建物の3階!
南青山ならではの低層エリア、コンクリートとガラスがオシャレな建物です。
美容室やサービス店舗にオススメです。
1階には地中海料理店、2階にはイタリアンが入居中。
詳しくはAzplusまでお問い合わせください。
| 物件No | 階数 | 面積 | 賃料(税込) | 業種 | 詳細 |
|---|---|---|---|---|---|
| k506 | 4F | 17.08坪 | 660,000円 | 閲覧 |








表参道駅徒歩4分、青山通りから1本入った通りにある建...









表参道駅徒歩3分。青山通り沿いから少し入った所にある...







表参道駅徒歩3分。青山通り沿いから少し入った所にある...







表参道駅徒歩3分。青山通り沿いから少し入った所にある...









表参道駅徒歩3分。青山通り沿いから少し入った所にある...
※図面と写真が現況と異なる場合は、現況を優先とします。