
- 港区白金台4-7-4
- 15.76坪 1F
- 月額賃料:572,000円
目黒通り沿いのテナントビルの1階貸店舗のご紹介。飲食...
※図面と写真が現況と異なる場合は、現況を優先とします。
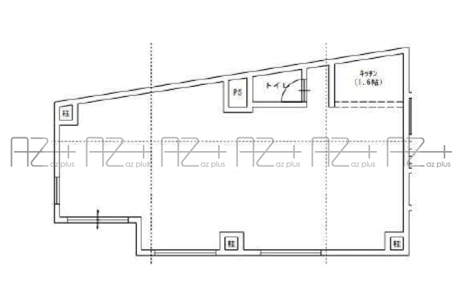
| 物件No. | k516 |
|---|---|
| 物件名称 | Solana六本木 1F |
| 所在地 | 港区六本木7-21-8 |
| 最寄駅 | ■東京メトロ日比谷線 「六本木」駅徒歩4分 ■都営大江戸線 「六本木」駅徒歩6分 ■東京メトロ千代田線 「乃木坂」駅徒歩7分 |
| 面積 | 44.06㎡(約13.32坪) |
| 月額賃料 | 税込550,000円(坪単価@約41,291円) 税別500,000円(坪単価@約37,537円) |
| 所在階 | 1F |
| 敷金 | 6ヶ月 |
| 償却 | 2ヶ月 |
| 再契約料 | 新賃料1ヶ月分 |
| 契約期間 | 定期借家契約2年 |
| 入居時期 | 2026年5月予定 |
|---|---|
| 火災保険料 | 要加入 |
| 保証会社 | 要加入:初回保証料は賃料等合計の100% |
| 構造・規模 | 鉄筋コンクリート造3階建 |
| 設備 | ■トイレ ■ビルトインエアコン ■火災警報器(報知器) |
| 現況 | 居住中 |
| 竣工 | 1987年12月 |
| 備考 | ■定期借家契約については要相談 ■土日・祝日利用可 ■業種応相談 |
| 取引様態 | 媒介 |
| 仲介手数料 | 賃料の1ヶ月分(別途消費税) |
| 更新日 | 2026-04-16 |
六本木駅徒歩4分、六本木のなかでは落ち着いた7丁目の閑静なエリアに建つ建物の1階!
角地にあり、前面にスペースがあります。
事務所仕様での引き渡しになりますので、事務所はもちろん、ショールーム、予約制の店舗等にオススメです。
詳しくはAZplusまでお問い合わせください。









目黒通り沿いのテナントビルの1階貸店舗のご紹介。飲食...







六本木駅徒歩4分、六本木の閑静な低層エリアにある建物...





六本木駅徒歩5分隠れ家立地の新築物件のご紹介です。1...





六本木駅徒歩3分、六本木通り沿い、六本木ヒルズの向か...









西麻布の低層エリアにある建物の2階!現状、事務所仕様...
※図面と写真が現況と異なる場合は、現況を優先とします。