
表参道エリア貸事務所 駅チカ、静かな環境!
- イル・チェントロ・セレーノ 4F-403号室
- 渋谷区神宮前5-46-16
表参道エリアの貸事務所のご紹介。駅からも近く静かな環境。小さめながらもシンプルで使いやすい間取り!オシャレな内装も魅力!ネイルサロン等の店舗もご相談可能!(保健所の許可等のいらない予約制の店舗までです)
| 物件No | 階数 | 面積 | 賃料(税込) | 業種 | 別フロア |
|---|---|---|---|---|---|
| k368 | 4F403号室 | 13.39坪 | 419,776円 | あり |
こんにちは♪ AZplusスタッフです。
今回は、表参道エリアにある店舗・事務所のご紹介です。

【所在地】
渋谷区神宮前5
【アクセス】
■東京メトロ銀座線・千代田線・半蔵門線
「表参道」駅徒歩5分
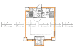
【面積】
44.27㎡(13.39坪)



表参道エリアの貸事務所のご紹介。
駅からも近く静かな環境。
小さめながらもシンプルで使いやすい間取り!
オシャレな内装も魅力!
ネイルサロン等の店舗もご相談可能!
(保健所の許可等のいらない予約制の店舗までです)
———————————————————-
AZplus(アズプラス)はこだわりの店舗物件情報を掲載中です!
AZplus運営会社:株式会社アドバンス・シティ・プランニング
お問合せフォームはこちら↓
https://azplus.jp/request/
お電話でのお問合せはこちら↓
TEL :03-5413-8778
店舗物件や不動産に関するご質問でもお気軽にご連絡下さい。
AZplusスタッフ

表参道エリアの貸事務所のご紹介。駅からも近く静かな環境。小さめながらもシンプルで使いやすい間取り!オシャレな内装も魅力!ネイルサロン等の店舗もご相談可能!(保健所の許可等のいらない予約制の店舗までです)
| 物件No | 階数 | 面積 | 賃料(税込) | 業種 | 別フロア |
|---|---|---|---|---|---|
| k368 | 4F403号室 | 13.39坪 | 419,776円 | あり |
Category:物件紹介 , 【店舗物件】千駄ヶ谷エリア
こんにちは♪ AZplusスタッフです。 今回は、千駄ヶ谷エリアにある店舗・事務所のご紹介です。 千駄ヶ谷尾澤ビル B1F 【所在地】 渋谷区千駄ヶ谷1 【アクセス】 ■JR総武線 「千駄ヶ谷」駅徒歩5分 ■…
Category:物件紹介 , 【店舗物件】赤坂エリア
こんにちは♪ AZplusスタッフです。 今回は、赤坂エリアにある店舗・事務所のご紹介です。 赤坂ステラビル 8F 【所在地】 港区赤坂3 【アクセス】 ■東京メトロ千代田線 「赤坂」駅徒歩1分 【面積】 約…
Category:物件紹介 , 【店舗物件】赤坂エリア
こんにちは♪ AZplusスタッフです。 今回は、赤坂エリアにある店舗・事務所のご紹介です。 赤坂キヨシビル 2F 【所在地】 港区赤坂2 【アクセス】 ■東京メトロ千代田線 「赤坂」駅徒歩3分 ■東京メトロ…